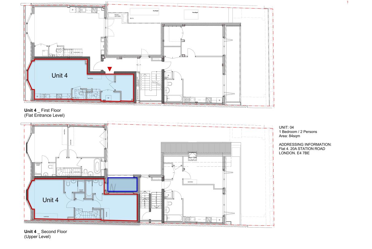
Unit 4
ENVIRONMENTALLY FRIENDLY FEATURES
– Air source heat pumps
– Rainwater reclamation system
– Solar panels
– Where possible or viable, materials used in construction are from renewable, sustainable or recyclable sources
– A rated kitchen appliances where possible
– Dual flush toilets
– Triple glazed throughout
– Upgraded insulation throughout
KITCHEN
– Contemporary fitted kitchen featuring gloss finishes with Quartz worktops and upstands
– Undercounter sink with mixer tap
-Range of energy efficient integrated appliances including
– 4 or 5 ring electric hob unit with extractor over
– Electric fan oven
– Microwave combined with second oven facility
– Fridge/freezer
– Dishwasher
UTILITY CUPBOARD
– Fitted washing machine
– Condensing clothes dryer
BATHROOMS AND EN-SUITES
– Attractively tiled, full height to bath/shower area, half height to other areas
– Glazed shower screen with ClearShield technology
– Fitted mirror
– Soft close wall hung WC
– Wall hung hand basin with vanity drawer
– Chrome towel rail
HEATING
– Air source heat pumps with underfloor heating throughout and wi-fi enabled digital touch pad controller
EXTERNAL
– Each apartment has either a large garden amenity area or large balcony with outside lighting and power
FLOORING, DOORS AND DECORATION
– Engineered oak flooring to halls, living and kitchen area
– Ceramic floor tiling to bathrooms/en suites
– Carpeting to bedrooms
– Internal doors oiled oak with brushed chrome door furniture
– Aluminium triple glazed windows and door to terrace/ balcony to Secure by Design where specified by Police inspector
– White satinwood to joinery
– Ceilings and walls finished in white vinyl matt
ELECTRICAL
– Down lighters to hallways, kitchen, bathrooms and en suites
– Pendants to living areas and bedrooms
– Brushed chrome electrical switches and sockets
– Balcony/patio lighting
– Audio visual colour entry system with security monitoring complaint with Secure by Design
– BT point to living room
– Pre wired for satellite TV with communal satellite
SECURITY & PARKING
– Fire Sprinkler System
– Smart phone controlled video door entry allowing control in any location worldwide
– Integrated fire alarm system.
– Automatic Smoke ventilation to stair core
– EWS1 fire approved assessments to all apartments.
10 YEAR ADVANTAGE WARRANTY
To download the brochure, simply click on the three dots and then “Download PDF File”
